Descripción
GRAN CASA EN EL BARRIO VILLA DEVOTO
A POCAS CUADRAS DE LA ESTACION DEL TREN URQUIZA "EL LIBERTADOR" Y A CINCO CUADRAS DE PLAZA ARENALES
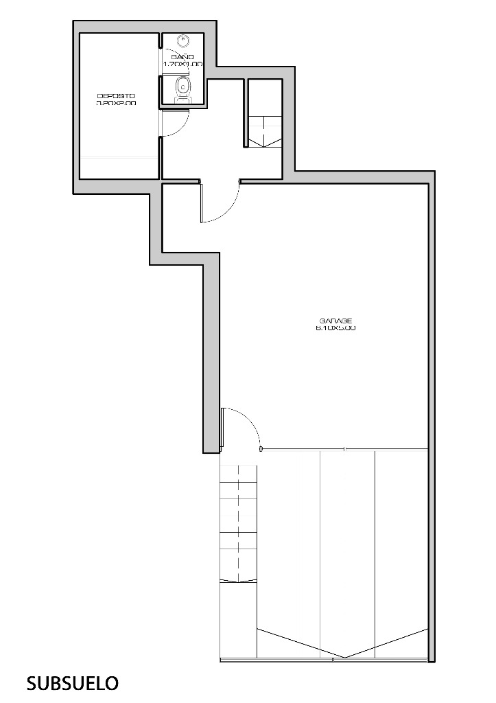
GARAGE PARA DOS AUTOS EN SEMISUBSUELO CON CUARTO DE GUARDADO, LAVADERO Y DEPENDENCIA DE SERVICIO
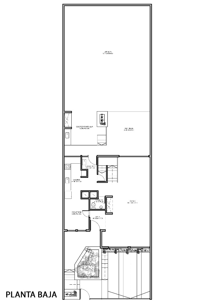
EN PLANTA BAJA,AMPLIO LIVING-COMEDOR CON TOILETTE DE RECEPCION, HOGAR A LEÑA, COCINA COMEDOR DIARIO Y SALIDA A TERRAZA SOBRE EL GRAN JARDIN CON PARRILLA
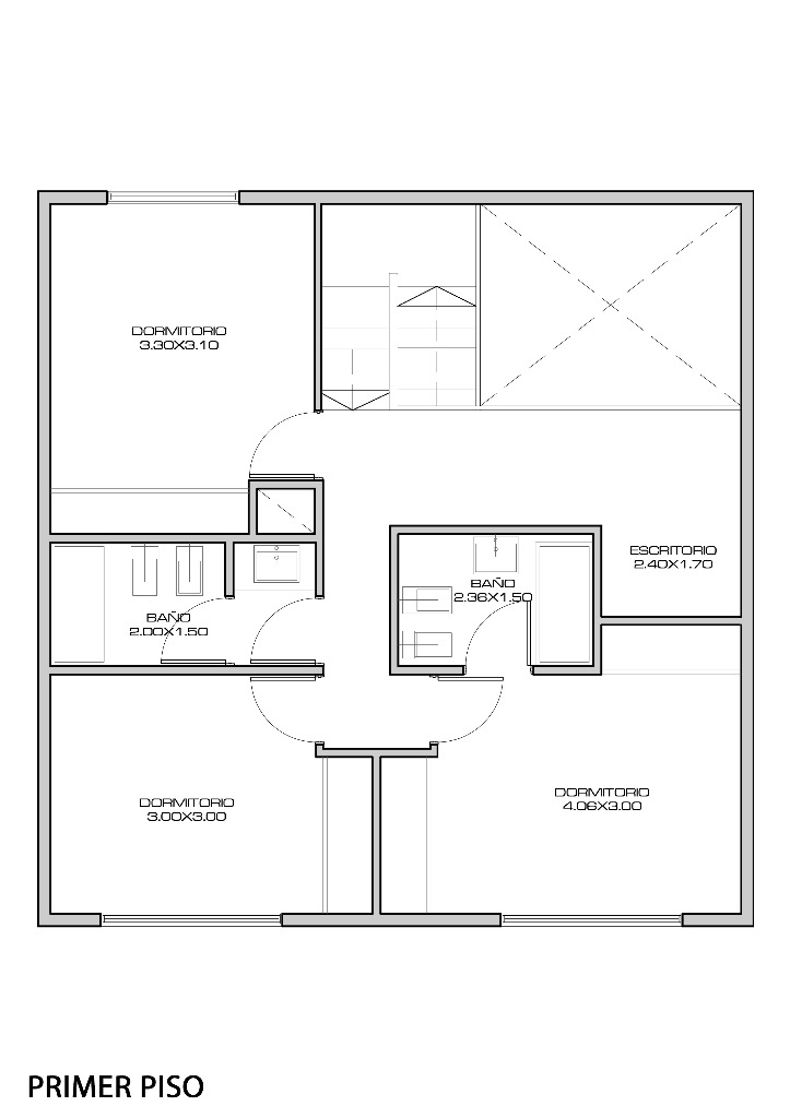
EN PLANTA ALTA ESCRITORIO, TRES DORMITORIOS, EL PRINCIPAL CON BAÑO EN SUITE, Y UN BA
A POCAS CUADRAS DE LA ESTACION DEL TREN URQUIZA "EL LIBERTADOR" Y A CINCO CUADRAS DE PLAZA ARENALES
GARAGE PARA DOS AUTOS EN SEMISUBSUELO CON CUARTO DE GUARDADO, LAVADERO Y DEPENDENCIA DE SERVICIO
EN PLANTA BAJA,AMPLIO LIVING-COMEDOR CON TOILETTE DE RECEPCION, HOGAR A LEÑA, COCINA COMEDOR DIARIO Y SALIDA A TERRAZA SOBRE EL GRAN JARDIN CON PARRILLA
EN PLANTA ALTA ESCRITORIO, TRES DORMITORIOS, EL PRINCIPAL CON BAÑO EN SUITE, Y UN BA
Ubicación
Villa Devoto, Ciudad de Buenos Aires
Detalle
Entre calles: LAVALLOL Y CAMPANA
Plantas: 3
Estado: Bueno
Gas natural: Si
Desagües cloacales: Si
Pavimento: Si
Agua corriente: Si
Superficie del terreno: 237.28 m2
Frente del terreno: 8.37 m2
Largo: 27.50 mts
Superficie cubierta: 210 m2
Superficie fondo: 169.78 m2
Living: 8.60x3.75
Comedor: C/LIVING
Escritorio: 2.40x1.70
Toilette recepción: Si
Hall íntimo: Si
Cantidad de dormitorios: 3
Dormitorio principal: 4.60x3.00
Dormitorio: 3.30x3.10
Cantidad de baños: 4
Comedor diario: 3.80x3.80
Cocina: 3.30x2.40
Dependencia de servicio: Si
Baño de servicio: 1.70x1.00
Lavadero: 2.50x1.50
Garage: Si
Cantidad coches: 2