Descripción
GRAN DEPARTAMENTO DE 4 AMBIENTES EN EXCELENTE UBICACION AL LADO DE PARQUE RIVADAVIA A PASOS DE LA ESTACION ACOYTE DEL SUBTE A
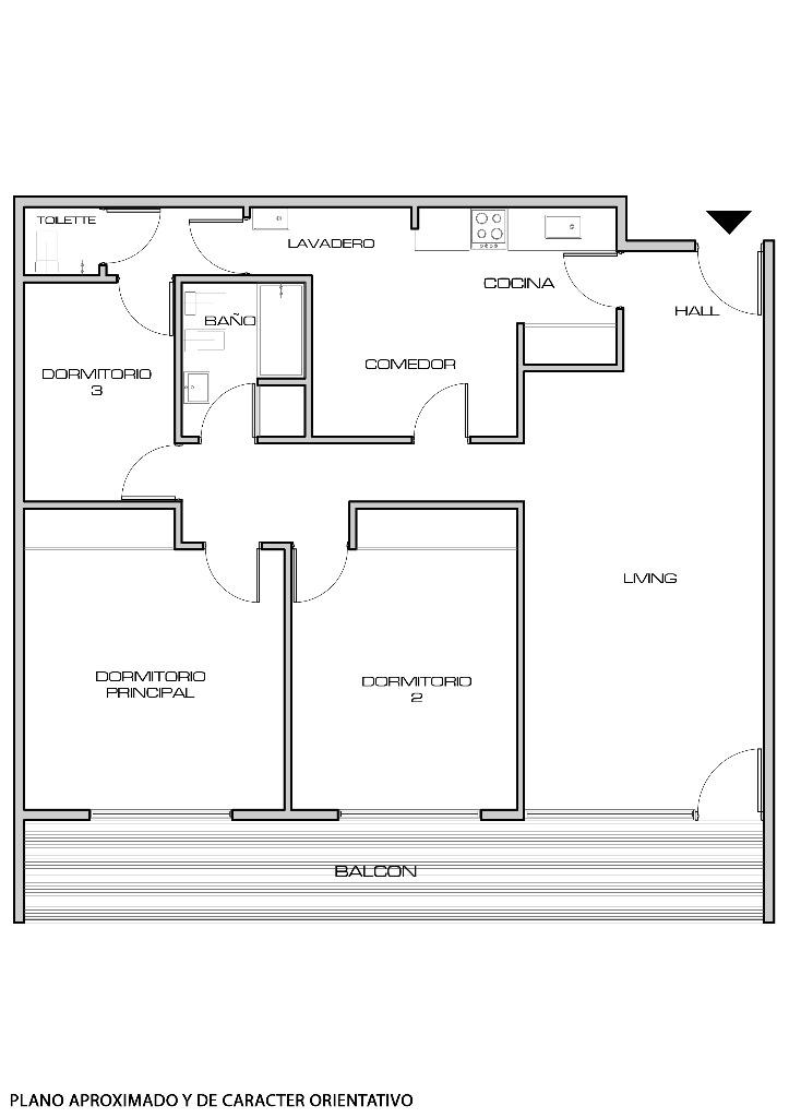
ENTRADA POR AVENIDA RIVADAVIA EDIFICIO CON LOCALES COMERCIALES EN PPLANTA BAJA
AMPLIO LIVING/COMEDOR CON SALIDA A BALCON CORRIDO DE 10,80x1,50 CON VISTA ABIERTA PULMON DE MANZANA
COCINA SEPARADA CON COMEDOR DIARIO Y LAVADERO CON TOILETTE DE SERVICIO
DOS DORMITORIOS CON PLACARD Y VENTANA AL BALCON, EL PRINCIPAL CON AIRE ACONDICIONADO
BAÑO C
ENTRADA POR AVENIDA RIVADAVIA EDIFICIO CON LOCALES COMERCIALES EN PPLANTA BAJA
AMPLIO LIVING/COMEDOR CON SALIDA A BALCON CORRIDO DE 10,80x1,50 CON VISTA ABIERTA PULMON DE MANZANA
COCINA SEPARADA CON COMEDOR DIARIO Y LAVADERO CON TOILETTE DE SERVICIO
DOS DORMITORIOS CON PLACARD Y VENTANA AL BALCON, EL PRINCIPAL CON AIRE ACONDICIONADO
BAÑO C
Ubicación
Caballito, Ciudad de Buenos Aires
Detalle
Piso: 3
Entre calles: AV. ACOYTE Y JUAN B. AMBROSETTI
Unidad: Departamento
Orientación: No
Luminosidad: Luminoso
Ubicación en planta: Contrafte
Estado: Muy bueno
Superficie cubierta: 96 m2
Superficie total: 112 m2
Balcón: 17 m2
Categoría del edificio: Excelente
Cantidad de pisos: 11
Antigüedad: 50 años
Gas natural: Si
Acceso personas con movilidad reducida: Si
Palier: Común
Hall: 2,00x1,50
Living: 7,00x3,50
Comedor: C/LIVING
Dormitorio principal: 3,80x3,80
Dormitorio: 3,20x2,20
Cantidad de baños: 2
Cocina: 4,20x1,40
Comedor diario: 2,80x2,10
Baño de servicio: 1,10x1,00
Lavadero: 1,60x1,00
Expensas: 480000
Mes: Octubre