Descripción
CASA EN DOS PLANTAS SOBRE LOTE PROPIO CON FONDO LIBRE EN PARQUE CHAS
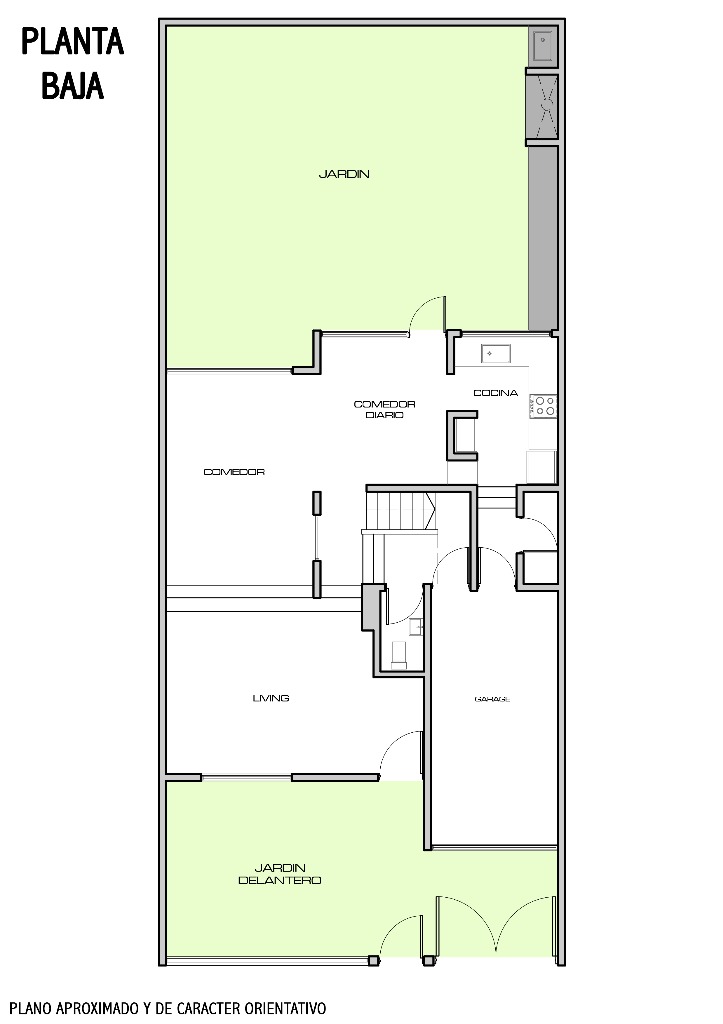
EN PLANTA BAJA, JARDIN AL FRENTE, GARAGE
LIVING, COMEDOR, TOILETTE, COCINA, COMEDOR DIARIO ,GRAN JARDIN CON PARRILLA
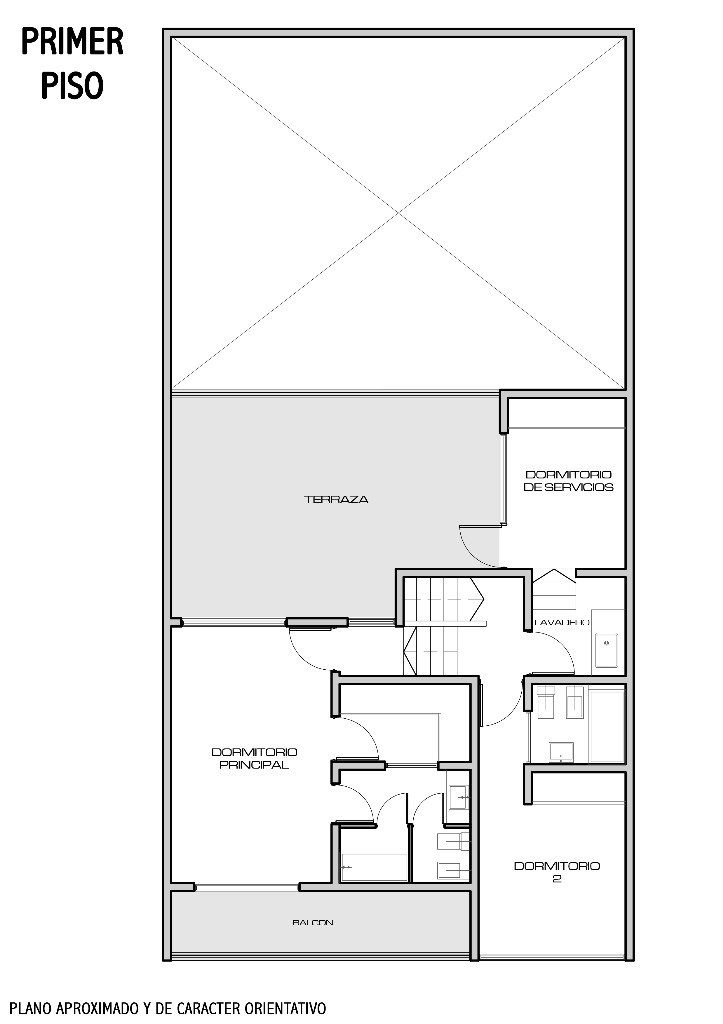
EN PLANTA ALTA, 2 AMPLIOS DORMITORIOS EN SUITE, PRINCIPAL CON VESTIDOR Y BALCON, HABITACION DE SERVICIO, LAVADERO Y TERRAZA
IDEL PARA MODERNIZAR Y AGREGAR UN TERCER DORMITORIO
Las medidas son aproximadas y de carácter orientativo
EN PLANTA BAJA, JARDIN AL FRENTE, GARAGE
LIVING, COMEDOR, TOILETTE, COCINA, COMEDOR DIARIO ,GRAN JARDIN CON PARRILLA
EN PLANTA ALTA, 2 AMPLIOS DORMITORIOS EN SUITE, PRINCIPAL CON VESTIDOR Y BALCON, HABITACION DE SERVICIO, LAVADERO Y TERRAZA
IDEL PARA MODERNIZAR Y AGREGAR UN TERCER DORMITORIO
Las medidas son aproximadas y de carácter orientativo
Ubicación
Parque Chas, Ciudad de Buenos Aires
Detalle
Entre calles: GANDARA Y TREVERIS
Plantas: 2
Estado: Bueno
Calefaccion: Aire caliente
Agua caliente: Termotanque
Gas natural: Si
Desagües cloacales: Si
Pavimento: Si
Agua corriente: Si
Superficie del terreno: 180 m2
Frente del terreno: 9 m2
Largo: 20 mts
Superficie cubierta: 138 m2
Superficie fondo: 57 m2
Terrazas: 28
Living: 4,50x3,85
Comedor: 4,55x3,20
Toilette recepción: Si
Cantidad de dormitorios: 2
Dormitorio principal: 4,80x3,00
Dormitorio: 2,80x2,80
Cantidad de baños: 3
Comedor diario: 3,20x2,80
Cocina: 3,20x2,25
Dependencia de servicio: Si
Lavadero: 2,00x1,85
Garage: Si
Cantidad coches: 1
Antigüedad: 50 años
Acceso personas con movilidad reducida: No