Descripción
EXCLENETE LOCAL A LA CALLE EN INMEJORABLE ZONA A PASOS DE TRIUNVIRATO Y LOS INCAS
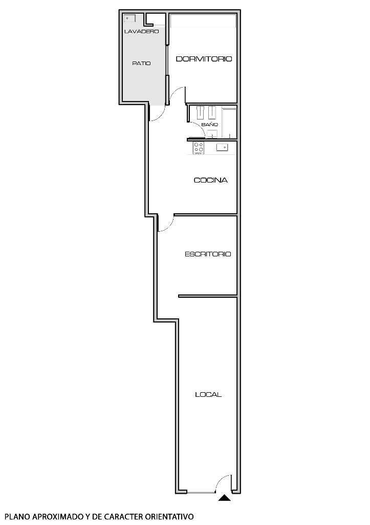
LOCAL A LA CALLE DE 8,90x2,70
OFICINA O ESCRITORIO SEPARADO DE 2,80x2,75
AL FONDO COCINA/COMEDOR, PATIO INTERNO, BAÑO COMPLETO, DORMITORIO Y PATIO CON LAVADERO
LAS MEDIDAS SON APROXIMADAS Y DE CARACTER ORTIENTATIVO
CUCICBA 2268
DIEGO MARCELO VEGA
LOCAL A LA CALLE DE 8,90x2,70
OFICINA O ESCRITORIO SEPARADO DE 2,80x2,75
AL FONDO COCINA/COMEDOR, PATIO INTERNO, BAÑO COMPLETO, DORMITORIO Y PATIO CON LAVADERO
LAS MEDIDAS SON APROXIMADAS Y DE CARACTER ORTIENTATIVO
CUCICBA 2268
DIEGO MARCELO VEGA
Ubicación
Parque Chas, Ciudad de Buenos Aires
Detalle
Entre calles: TRIUNVIRATO Y TREVERIS
Categoría del edificio: Buena
Estado: Bueno
Gas natural: Si
Propiedad horizontal: Si
Superficie cubierta PB: 65 m2
Superficie descubierta: 11 m2
Superficie total: 84 m2
Impuesto municipal: 388,65
Expensas: 62000
Mes: OCTUBRE
Superficie vivienda: Si m2
Ancho: 2,70 mts
Fondo libre: 8,90 m2
Largo de vidriera: 2,50 mts
Office: Si
No hay video disponible