Descripción
CASA A REFACCIONAR CON CON AMPLIA TERRAZA CON VISTA AL PARQUE AGRONOMIA
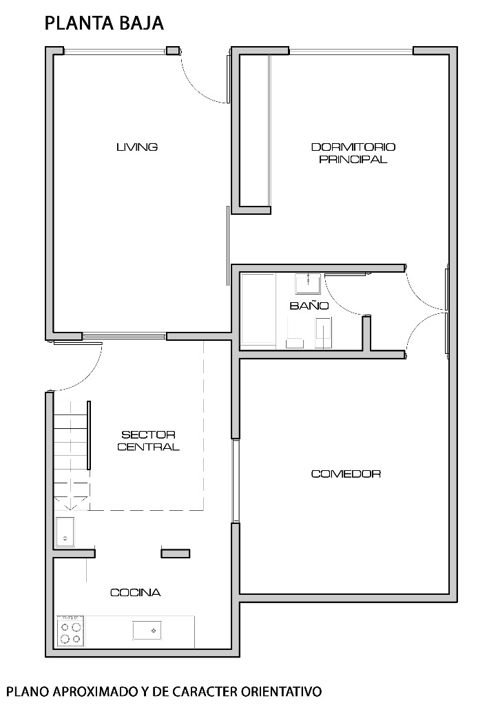
EN PLANTA BAJA LIVING, COMEDOR, DORMITORIO CON PLACARD, BAÑO COMPLETO Y COCINA A GAS, LAVADERO
SECTOR CENTRAL CON TECHO MOVIL EN PERFECTO FUNCIONAMIENTO
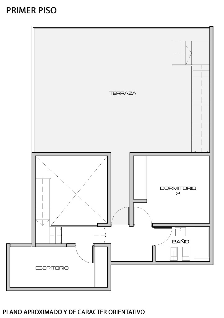
EN PLANTA ALTA ESCRITORIO CON PLACARD Y AIRE ACONDICIONADO, BAÑO COMPLETO, DORMITORIO PRINCIPAL CON PLACARD Y SALIDA A LA TERRAZA
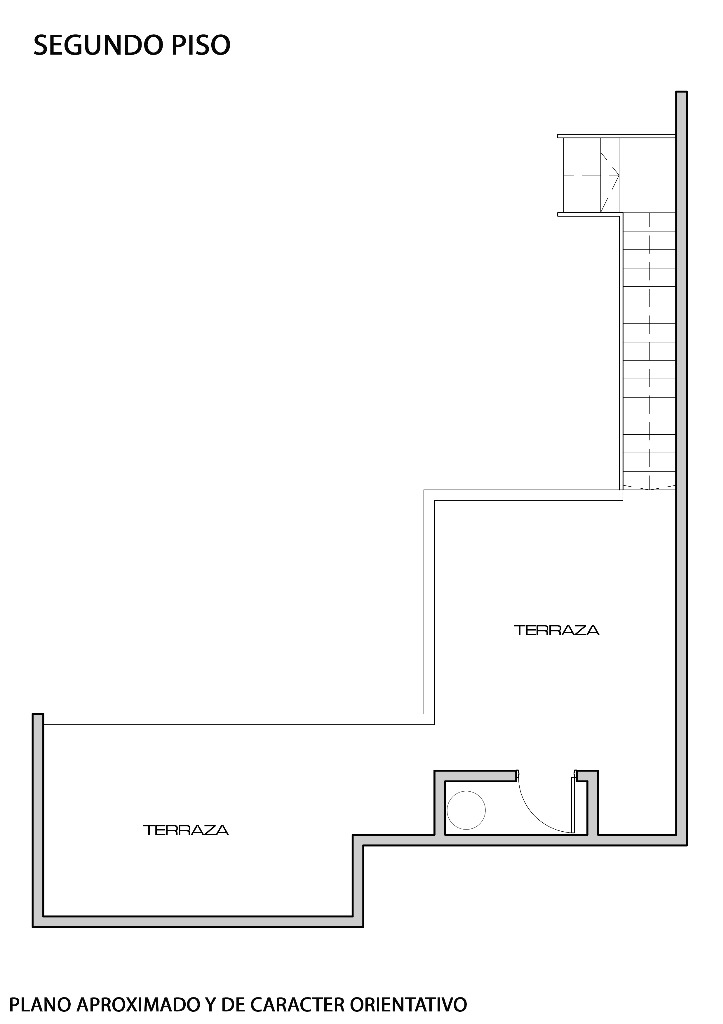
UNA PLANTA MAS DESCUBIERTA CON PEQUEÑA TERRAZA Y SALA DE TERMOTANQUE Y DE GUARDADO
Las medidas son aprox
EN PLANTA BAJA LIVING, COMEDOR, DORMITORIO CON PLACARD, BAÑO COMPLETO Y COCINA A GAS, LAVADERO
SECTOR CENTRAL CON TECHO MOVIL EN PERFECTO FUNCIONAMIENTO
EN PLANTA ALTA ESCRITORIO CON PLACARD Y AIRE ACONDICIONADO, BAÑO COMPLETO, DORMITORIO PRINCIPAL CON PLACARD Y SALIDA A LA TERRAZA
UNA PLANTA MAS DESCUBIERTA CON PEQUEÑA TERRAZA Y SALA DE TERMOTANQUE Y DE GUARDADO
Las medidas son aprox
Ubicación
Parque Chas, Ciudad de Buenos Aires
Detalle
Entre calles: BURELA Y OSLO
Plantas: 3
Estado: A Refacc.
Calefaccion: Estufas
Agua caliente: Termotanque
Gas natural: Si
Desagües cloacales: Si
Pavimento: Si
Agua corriente: Si
Superficie del terreno: 1 m2
Frente del terreno: 8 m2
Largo: 12 mts
Superficie cubierta: 110 m2
Terrazas: 73
Living: 5,30x3,40
Comedor: 4,50x3,95
Escritorio: 3,75x1,80
Cantidad de dormitorios: 2
Dormitorio principal: 4,00x3,40
Dormitorio: 3,40x3,00
Cantidad de baños: 2
Cocina: 3,40x1,75
Lavadero: C/ SECT.