Descripción
CASA A REFACCIONAR CON GRAN POTENCIAL EN EXCELENTE UBICACION
A DOS CUADRAS DE LA ESTACION LOS INCAS DEL SUBTE B
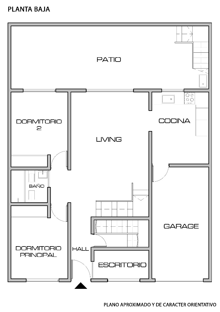
EN PLANTA BAJA HALL DE ENTRADA CON ESCRITORIO
DOS DORMITORIOS, BAÑO COMPLETO, AMPLIO LIVING COMEDOR, COCINA CON COMEDOR DIARIO, GARAGE
PATIO EN EL FONDO CON ACCESO A LA TERRAZA POR ESCALERA
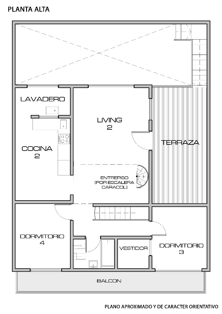
EN PLANTA ALTA DOS DORMITORIOS MAS, OTRO BAÑO COMPLETO, SALON DE JUEGOS O LIVING 2, OTRA COCINA DE 4,35 x 2,75 CON LAVADERO
ENTREPISO DE MADERA DE 2,25x
A DOS CUADRAS DE LA ESTACION LOS INCAS DEL SUBTE B
EN PLANTA BAJA HALL DE ENTRADA CON ESCRITORIO
DOS DORMITORIOS, BAÑO COMPLETO, AMPLIO LIVING COMEDOR, COCINA CON COMEDOR DIARIO, GARAGE
PATIO EN EL FONDO CON ACCESO A LA TERRAZA POR ESCALERA
EN PLANTA ALTA DOS DORMITORIOS MAS, OTRO BAÑO COMPLETO, SALON DE JUEGOS O LIVING 2, OTRA COCINA DE 4,35 x 2,75 CON LAVADERO
ENTREPISO DE MADERA DE 2,25x
Ubicación
Villa Ortuzar, Ciudad de Buenos Aires
Detalle
Entre calles: GIRIBONE Y PASAJE OHM
Plantas: 2
Estado: A Refacc.
Calefaccion: Estufas
Agua caliente: Termotanque
Mejoras: Si
Gas natural: Si
Desagües cloacales: Si
Pavimento: Si
Agua corriente: Si
Superficie del terreno: 128 m2
Frente del terreno: 10 m2
Largo: 12,80 mts
Superficie cubierta: 160 m2
Patios: 30
Terrazas: 16
Living: 3,85x6,15
Comedor: C/LIVING
Escritorio: 2,70x1,40
Hall íntimo: Si
Cantidad de dormitorios: 4
Dormitorio principal: 3,00x2,80
Dormitorio: 3,10x2,80
Cantidad de baños: 2
Comedor diario: C/COCINA
Cocina: 3,40x2,75
Baño de servicio: 1,90x1,60
Lavadero: 2,80x1,40
Garage: Si
Cantidad coches: 1
Acceso personas con movilidad reducida: No